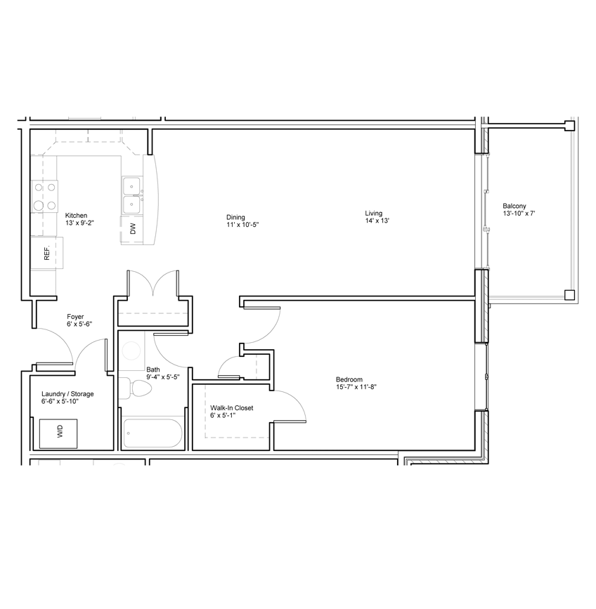
Suites Style "E1" 862 square foot, one bedroom apartment The bedroom is 15' 7" x 11' 8" with a 6' x 5' 1" walk in closet.