Style B3

Suite Layouts Style B3

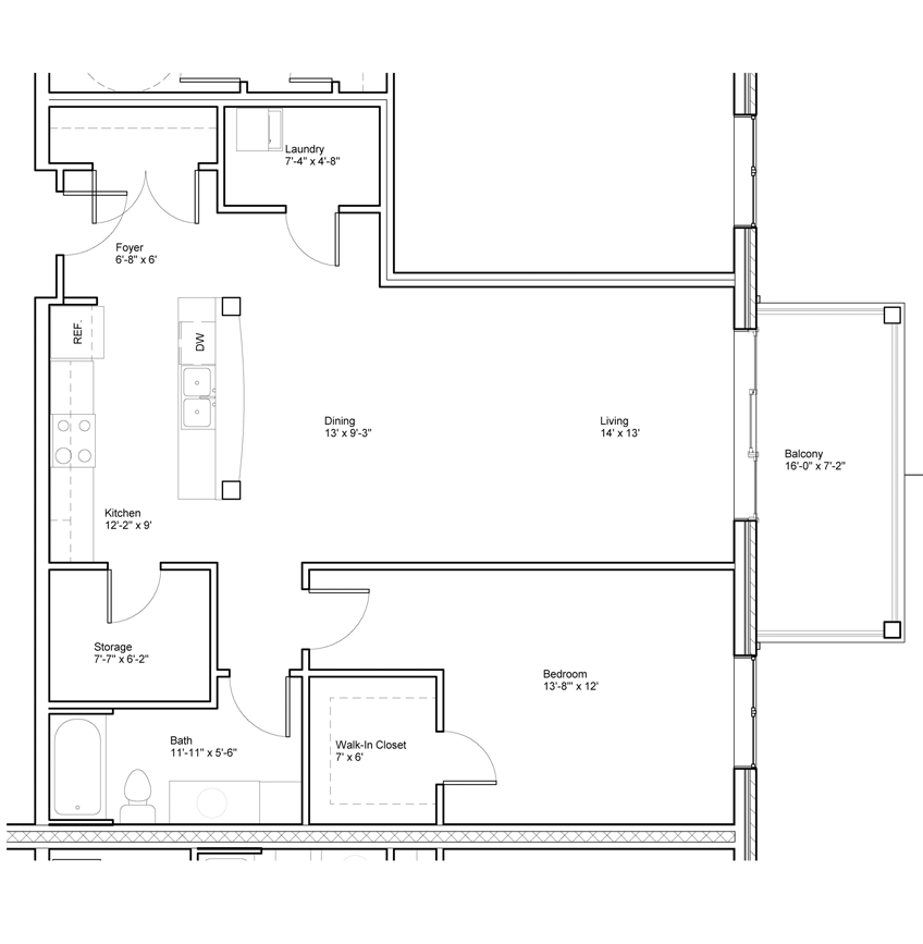
Suites Style "B3"

946 square foot, one bedroom apartment with storage room
The bedroom is 13' 8" x 12' with a 7' x 6' walk in closet
The storage room is 7' 7" x 6'2"